Chậu rửa treo tường COTTO C01397

- Chậu rửa lavabo COTTO C01397
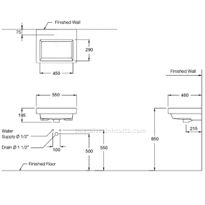
- Kích thước 500x460x195mm
- Loại chậu rửa lavabo treo tường
- Chậu rửa Cotto dễ dàng lắp đặt và tiết kiệm không gian
- Men sứ chất lượng cao, giúp dễ dàng vệ sinh sau khi sử dụng
- Lưu ý: Không dùng hóa chất có tính axit mạnh để vệ sinh chậu.
- Chậu rửa cotto thiết bị vệ sinh thiết kế đơn giản tiện nghi. Sử dụng vật liệu và công nghệ thân thiện môi trường. Những mẫu thiết bị vệ sinh thiết kế hiện đại sang trọng mang lại cho bạn sự thoải mái nhất.
- Xuất xứ Thái Lan
Bản vẽ kỹ thuật
